双溪源筑-售楼部

双溪源筑
  • 双溪源筑

  • 12000元/㎡

  • 商墅

  • 87-200

  • 2020031

  • 福建乐城置业有限责任公司

额外3%折扣优惠
包含一房一价/余房信息等

立即领取

基本信息

楼盘名称:双溪源筑 在售

楼盘特点:低单价 三环外 热搜盘 人气楼盘 品牌开发商

参考单价:12000元/㎡

楼盘总价:100-270 万元/套

物业类型:商办

开发商:福建乐城置业有限责任公司

区域位置:三环外- 连江县- 贵安

楼盘地址:贵安村贵安大道29号


销售信息

最低首付:50%

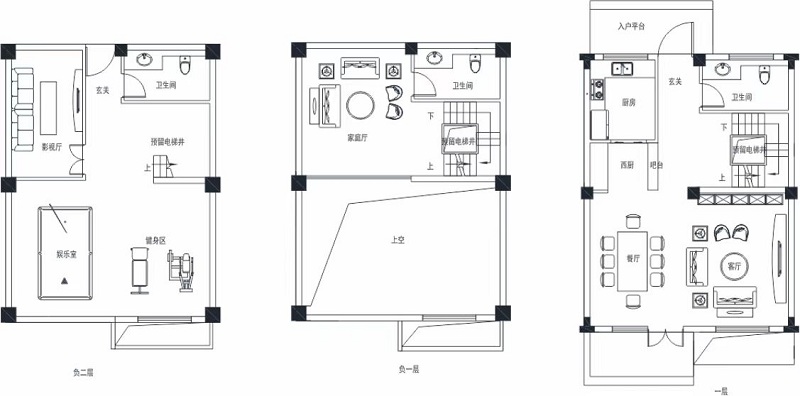
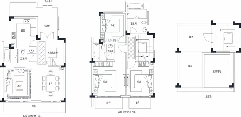
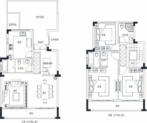
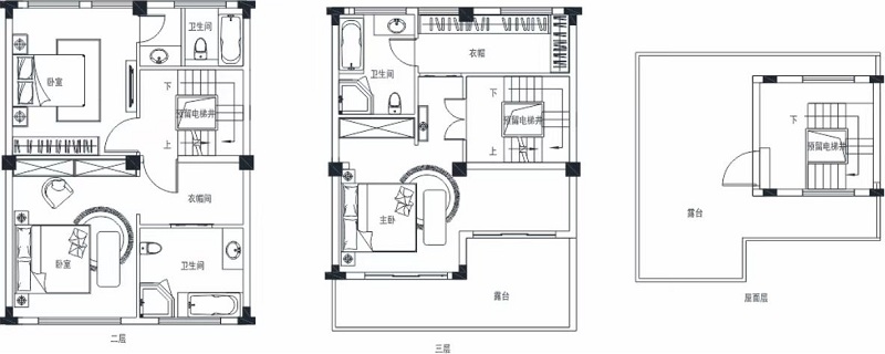
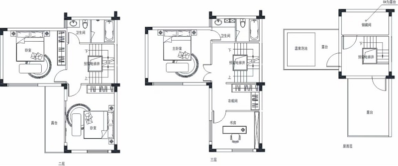
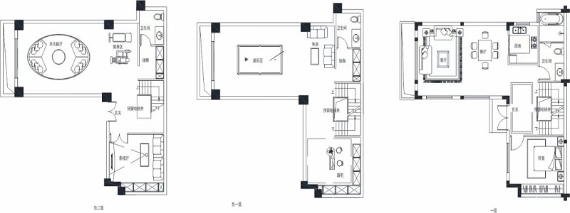
楼盘户型:叠拼别墅,联排别墅,合院别墅

最新开盘:2020年7月11日

交房时间:2021年12月31日

售楼处地址:连江贵安大道29号


小区规划

建筑类型:别墅

产权年限:商办:40年

占地面积:70411㎡

建筑面积:4.9万㎡ 

绿化率:35%

容积率:0.92 

规划户数:388户

工程进度:已竣工

交房时间:2021-12-30

物业管理费:2.95元/㎡

物业公司:世纪金源物业服务集团有限公司连江分公司

车位数:388

车位比:1:1 


区位图

户型图

样板间

效果图

额外折扣优惠

双溪源筑

X
折扣领取